Proto
Tulum, México. 2023
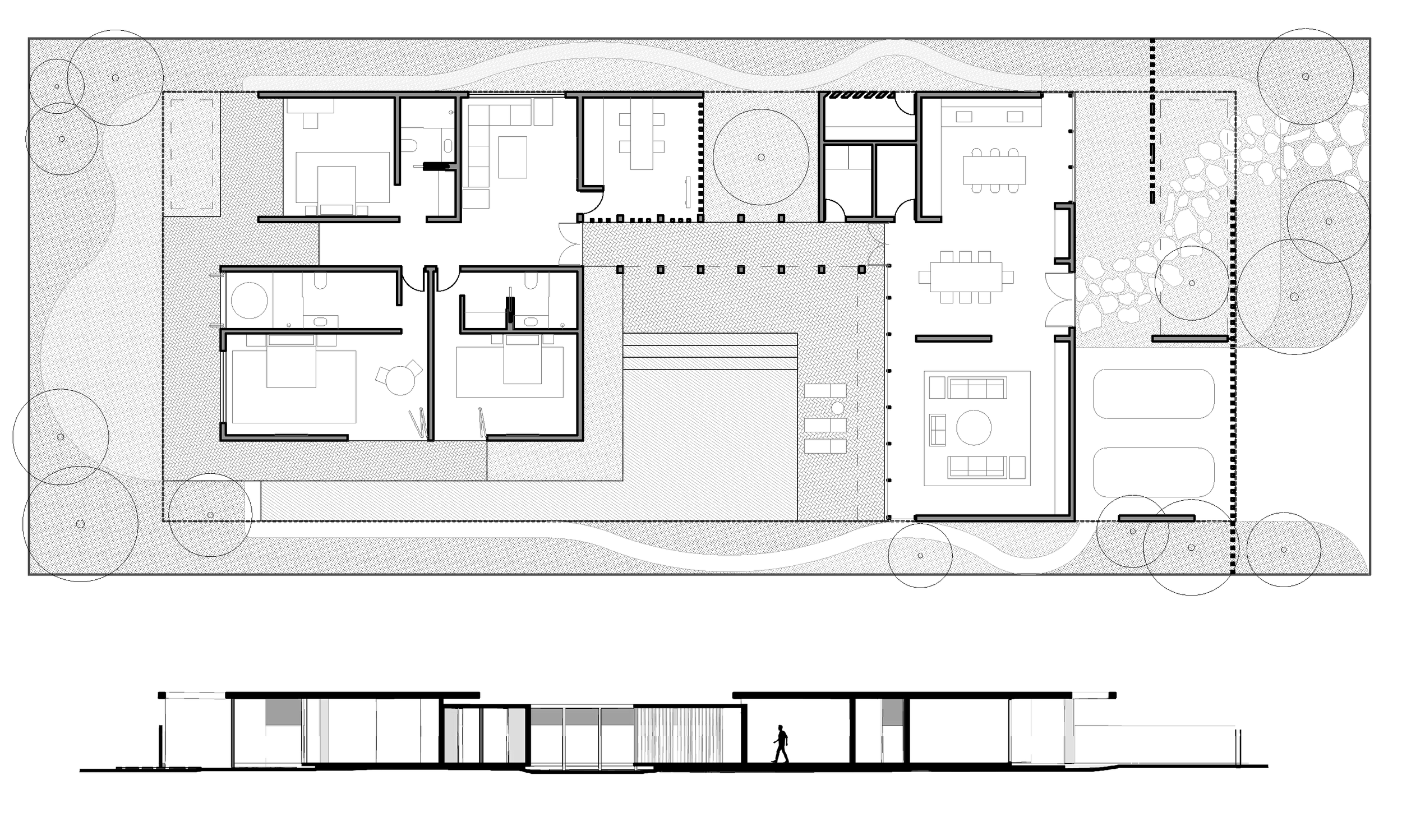
Vivienda unifamiliar
Alcance: proyecto arquitectónico
Superficie: 1,000 m2
Estatus: finalizado
Tulum, México. 2023
Vivienda unifamiliar
Alcance: proyecto arquitectónico
Superficie: 1,000 m2
Estatus: finalizado